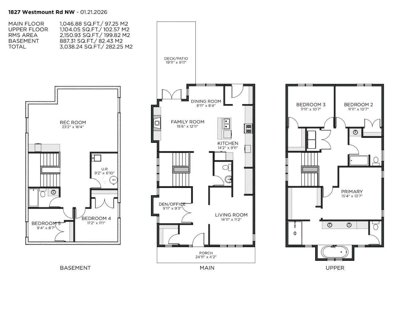
Located on a quiet street in prime Hillhurst, 1827 Westmount Road NW is a meticulously maintained home offering 2,150 sq. ft. above grade (3,038 sq. ft. total) of bright and functional living space. The interior features site-finished hardwood throughout the main and upper floors, providing a seamless transition between the formal front dining room/family room, the private office, and the main living area. The chef’s kitchen is equipped with granite countertops, a gas stove, and a substantial side pantry with extensive storage and additional counter space. This area opens into a bright, south-facing breakfast nook, adjacent to a living room anchored by a gas fireplace and large windows with an external awning for light control.
The upper level includes three spacious bedrooms and a dedicated laundry room. The primary suite serves as a quiet retreat, featuring a walk-in closet and a five-piece ensuite with a steam shower. The fully developed basement is finished with durable tile and features integrated underfloor heating for efficient year-round comfort. This lower level adds a large recreation area with a side bar and beverage fridge, plus two additional bedrooms (one currently configured as a gym) and a full bathroom. Recent mechanical and exterior updates include hot water on demand, a new boiler and sump pump (2024), Gemstone lighting (2023), furnace (2020), and new shingles (2018). The low-maintenance south backyard features TREX decking and artificial turf, leading to the double detached garage. Ideally situated 100 meters from grocery stores and minutes from Kensington shopping and downtown Calgary. Book a showing, you''re going to love this house!
The upper level includes three spacious bedrooms and a dedicated laundry room. The primary suite serves as a quiet retreat, featuring a walk-in closet and a five-piece ensuite with a steam shower. The fully developed basement is finished with durable tile and features integrated underfloor heating for efficient year-round comfort. This lower level adds a large recreation area with a side bar and beverage fridge, plus two additional bedrooms (one currently configured as a gym) and a full bathroom. Recent mechanical and exterior updates include hot water on demand, a new boiler and sump pump (2024), Gemstone lighting (2023), furnace (2020), and new shingles (2018). The low-maintenance south backyard features TREX decking and artificial turf, leading to the double detached garage. Ideally situated 100 meters from grocery stores and minutes from Kensington shopping and downtown Calgary. Book a showing, you''re going to love this house!
Current real estate data for Single Family in Calgary as of Jan 24, 2026
2,480
Single Family Listed
51
Avg DOM
469
Avg $ / SqFt
$833,490
Avg List Price
Property Details
Price:
$1,285,000
MLS #:
A2280605
Status:
Active
Beds:
5
Baths:
4
Type:
Single Family
Subtype:
Detached
Subdivision:
Hillhurst
Listed Date:
Jan 22, 2026
Finished Sq Ft:
2,151
Lot Size:
3,573 sqft / 0.08 acres (approx)
Year Built:
2005
Schools
Interior
Appliances
Bar Fridge, Central Air Conditioner, Dishwasher, Garage Control(s), Gas Range, Refrigerator, Tankless Water Heater, Washer/Dryer, Water Softener, Window Coverings
Basement
Full
Bathrooms Full
3
Bathrooms Half
1
Laundry Features
Upper Level
Exterior
Exterior Features
Awning(s), Lighting
Lot Features
Back Lane, Back Yard, Low Maintenance Landscape
Parking Features
Double Garage Detached
Parking Total
2
Patio And Porch Features
Awning(s), Deck, Front Porch
Roof
Asphalt Shingle
Financial
Map
Contact Us
Mortgage Calculator
Community
- Address1827 Westmount Road NW Calgary AB
- SubdivisionHillhurst
- CityCalgary
- CountyCalgary
- Zip CodeT2N 3M6
Subdivisions in Calgary
- Abbeydale
- Acadia
- Albert Park/Radisson Heights
- Alpine Park
- Altadore
- Alyth/Bonnybrook
- Applewood Park
- Arbour Lake
- Aspen Woods
- Auburn Bay
- Banff Trail
- Bankview
- Bayview
- Beddington Heights
- Bel-Aire
- Belmont
- Beltline
- Belvedere
- Bonavista Downs
- Bowness
- Braeside
- Brentwood
- Bridgeland/Riverside
- Bridlewood
- Britannia
- Calgary International Airport
- Cambrian Heights
- Canyon Meadows
- Capitol Hill
- Carrington
- Castleridge
- Cedarbrae
- Chaparral
- Charleswood
- Chinatown
- Chinook Park
- Christie Park
- Citadel
- Cityscape
- Cliff Bungalow
- Coach Hill
- Collingwood
- Copperfield
- Coral Springs
- Cornerstone
- Cougar Ridge
- Country Hills
- Country Hills Village
- Coventry Hills
- Cranston
- Crescent Heights
- Crestmont
- Currie Barracks
- Dalhousie
- Deer Ridge
- Deer Run
- Deerfoot Business Centre
- Diamond Cove
- Discovery Ridge
- Douglasdale/Glen
- Dover
- Downtown Commercial Core
- Downtown East Village
- Downtown West End
- Eagle Ridge
- East Fairview Industrial
- East Shepard Industrial
- Eau Claire
- Edgemont
- Elbow Park
- Elboya
- Erin Woods
- Erlton
- Evanston
- Evergreen
- Fairview
- Fairview Industrial
- Falconridge
- Foothills
- Forest Heights
- Forest Lawn
- Forest Lawn Industrial
- Franklin
- Garrison Green
- Garrison Woods
- Glacier Ridge
- Glamorgan
- Glenbrook
- Glendale
- Greenview
- Greenview Industrial Park
- Greenwood/Greenbriar
- Hamptons
- Harvest Hills
- Haskayne
- Hawkwood
- Haysboro
- Hidden Valley
- Highfield
- Highland Park
- Highwood
- Hillhurst
- Homestead
- Horizon
- Hotchkiss
- Hounsfield Heights/Briar Hill
- Huntington Hills
- Inglewood
- Kelvin Grove
- Killarney/Glengarry
- Kincora
- Kingsland
- Lake Bonavista
- Lakeview
- Legacy
- Lewisburg
- Lincoln Park
- Livingston
- Lower Mount Royal
- MacEwan Glen
- Mahogany
- Manchester
- Manchester Industrial
- Maple Ridge
- Marlborough
- Marlborough Park
- Martindale
- Mayfair
- Mayland
- Mayland Heights
- McCall
- McKenzie Lake
- McKenzie Towne
- Meadowlark Park
- Medicine Hill
- Meridian
- Midnapore
- Millrise
- Mission
- Monterey Park
- Montgomery
- Moraine
- Mount Pleasant
- New Brighton
- Nolan Hill
- North Airways
- North Glenmore Park
- North Haven
- Oakridge
- Ogden
- Out of Area Calgary
- Palliser
- Panorama Hills
- Parkdale
- Parkhill
- Parkland
- Patterson
- Pegasus
- Penbrooke Meadows
- Pine Creek
- Pineridge
- Point McKay
- Pump Hill
- Queensland
- Ramsay
- Ranchlands
- Rangeview
- Red Carpet
- Redstone
- Renfrew
- Ricardo Ranch
- Richmond
- Rideau Park
- Riverbend
- Rocky Ridge
- Rosedale
- Rosemont
- Rosscarrock
- Roxboro
- Royal Oak
- Royal Vista
- Rundle
- Rutland Park
- Saddle Ridge
- Saddleridge Industrial
- Sage Hill
- Sandstone Valley
- Scarboro
- Scarboro/Sunalta West
- Scenic Acres
- Section 23
- Seton
- Shaganappi
- Shawnee Slopes
- Shawnessy
- Shepard Industrial
- Sherwood
- Signal Hill
- Silver Springs
- Silverado
- Skyline West
- Skyview Ranch
- Somerset
- South Airways
- South Calgary
- South Foothills
- Southview
- Southwood
- Springbank Hill
- Spruce Cliff
- St Andrews Heights
- Starfield
- Stonegate Landing.
- Stoney 1
- Stoney 2
- Stoney 3
- Stoney 4
- Strathcona Park
- Sunalta
- Sundance
- Sunnyside
- Sunridge
- Taradale
- Temple
- Thorncliffe
- Tuscany
- Tuxedo Park
- Twinhills
- University District
- University Heights
- University of Calgary
- Upper Mount Royal
- Valley Ridge
- Varsity
- Vista Heights
- Walden
- West Hillhurst
- West Springs
- Westgate
- Westwinds
- Whitehorn
- Wildwood
- Willow Park
- Windsor Park
- Winston Heights/Mountview
- Wolf Willow
- Woodbine
- Woodlands
- Yorkville
Property Summary
- Located in the Hillhurst subdivision, 1827 Westmount Road NW Calgary AB is a Single Family for sale in Calgary, AB, T2N 3M6. It is listed for $1,285,000 and features 5 beds, 4 baths, and has approximately 2,151 square feet of living space, and was originally constructed in 2005. The current price per square foot is $597. The average price per square foot for Single Family listings in Calgary is $469. The average listing price for Single Family in Calgary is $833,490. To schedule a showing of MLS#a2280605 at 1827 Westmount Road NW in Calgary, AB, contact your ReMax Mountain View – Rob Johnstone agent at 403-730-2330.
Similar Listings Nearby

1827 Westmount Road NW
Calgary, AB



































